Gørdingvej 41, Jernvedlund, 6771 Gredstedbro
Villa

INDBYDENDE OG PRISVENLIG BOLIG MED UDSIGT TIL ÅBNE MARKER

Her får du en indbydende bolig, hvor funktionelle løsninger, hyggelige opholdsrum og en naturskøn beliggenhed går hånd i hånd. Ejendommen fremstår lys og velindrettet med gode moderniseringer og en planløsning, der passer perfekt til både hverdag og fritid.

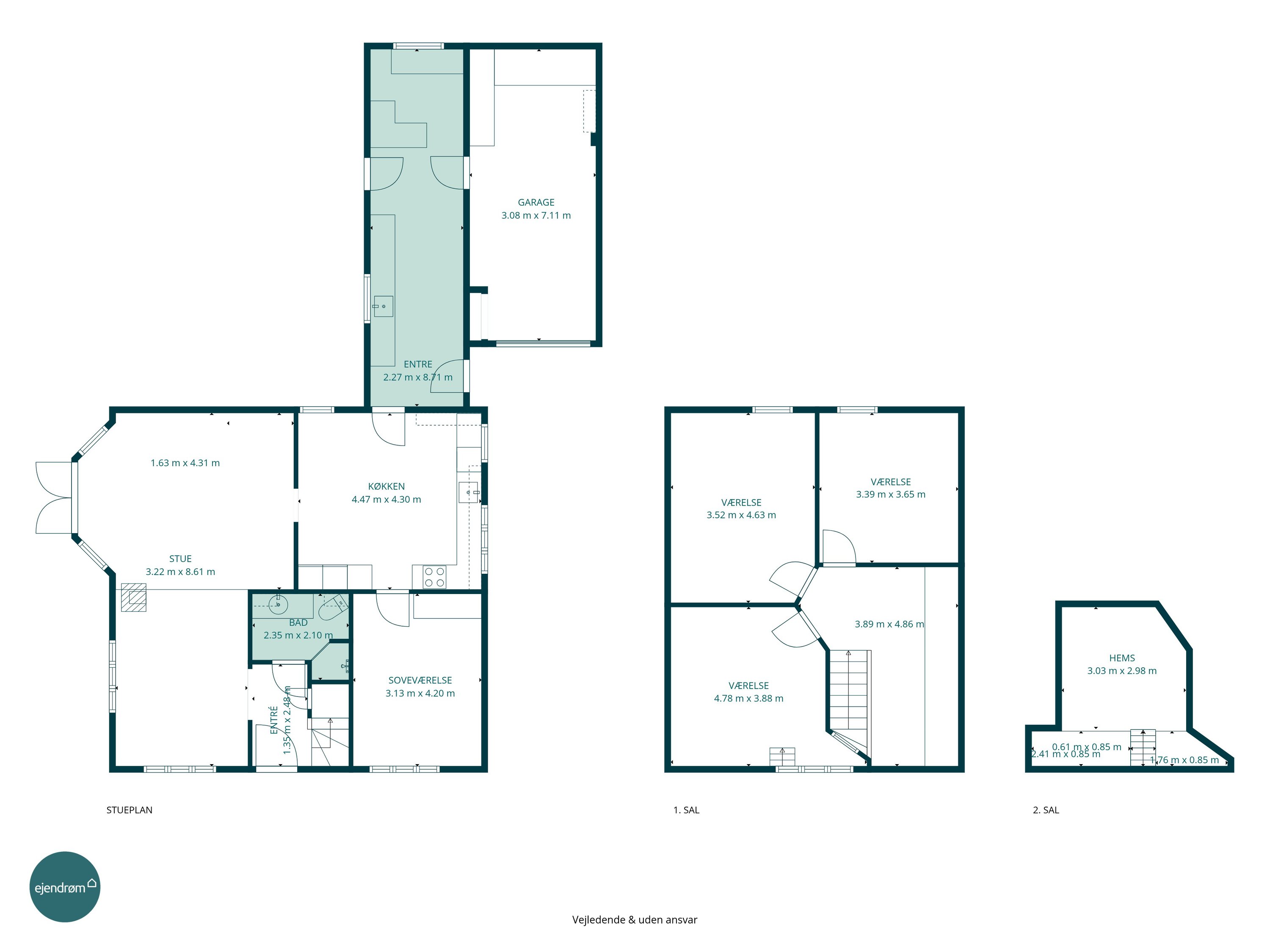
Boligen byder velkommen i et moderniseret køkken, der ligger i åben forbindelse med den store og rummelige stue og skaber et naturligt samlingspunkt i hverdagen. Her er der god plads til både madlavning og samvær, og det åbne opholdsrum præges af et flot lysindfald, en hyggelig brændeovn samt en smuk karnap. Fra karnappen er der direkte udgang til terrassen, som forbinder inde- og udeliv på fineste vis.

I stueplan findes desuden et stort og anvendeligt værelse, som let kan indrettes som soveværelse, kontor eller gæsteværelse. Hertil kommer et rummeligt bryggers med god plads til opbevaring og hverdagens praktiske gøremål samt adgang til garage med elport.

På 1. sal, som er renoveret, mødes man af lyse og indbydende rum med Troldtekt-lofter, der bidrager til et behageligt indeklima, suppleret med ejendommens to luft-luft varmepumper. På øverste etage findes også en hems, som giver ekstra anvendelig plads.
Udendørs venter en lukket og overskuelig have med skøn udsigt til de omkringliggende marker, der giver ro og en fornemmelse af luft og frihed.

Alt i alt en prisvenlig bolig med gode rammer for hverdagslivet. Ønsker du et familiehjem i trygge omgivelser med et stærkt lokalsamfund og gode fællesskaber, er denne villa et oplagt valg. Kontakt os i dag – vi glæder os til at vise dig rundt.


Vil du vide mere om ejendommen?

Emil Larsen

Ejendrømssælger

748.000 kr.
Gørdingvej 41, Jernvedlund, 6771 Gredstedbro


Yderligere detaljer
Pris 748.000 kr.
Udbetaling 40.000 kr.
Ejerudgift pr. måned 1.210 kr.
Brutto pr. md. eksl. ejerudgift 4.114 kr.
Netto pr. md. eksl. ejerudgift 3.289 kr.