NY PRIS
Søndergade 38A, Varde, 6800 Varde
Villa

DIN MULIGHED FOR EN GOD INVESTERING ELLER FLERE GENERATIONER UNDER SAMME TAG

Er du på jagt efter en ejendom, der kombinerer funktionalitet og indtjeningspotentiale? Så er Søndergade 38A lige noget for dig! Beliggende i Varde Syd får du her en ejendom med masser af muligheder og et stærkt fundament for en sund økonomisk fremtid.
 
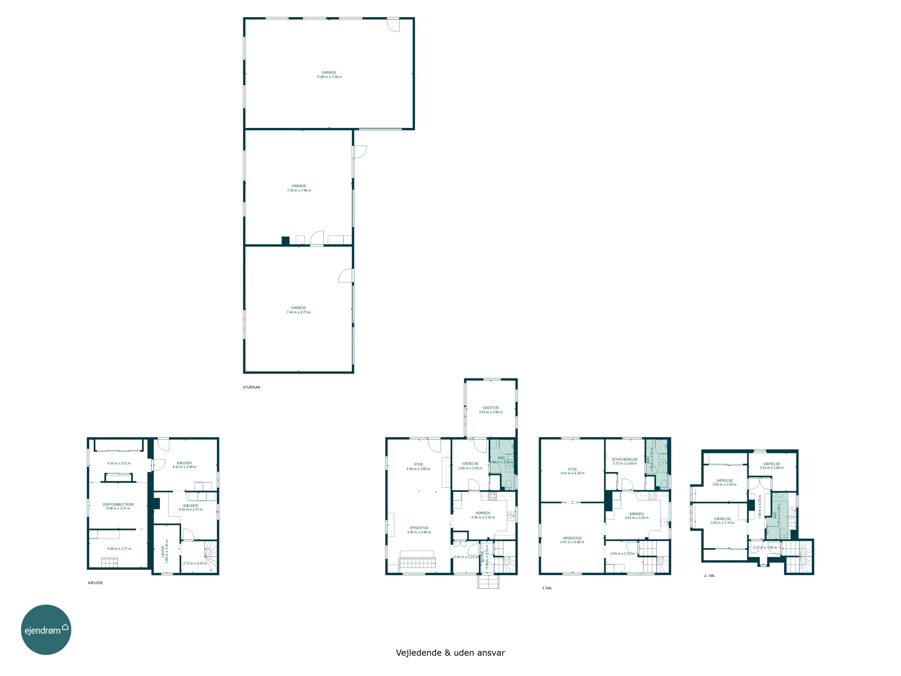
Ejendommen byder på potentialet til at indrette hele fire udlejningslejligheder. Med en attraktiv beliggenhed i Varde Syd, tæt på byens bekvemmeligheder, har du et ideelt grundlag for at tiltrække lejere. Forvent et stabilt afkast og en sikker investering – uanset om du ønsker at udleje alle enheder eller bo i en af dem selv. 
 
Til ejendommen hører hele tre garager – perfekt til dig eller dine lejere, der har brug for ekstra plads til biler, værktøj eller hobbyprojekter. Garagerne kan også være et ekstra attraktivt element, der gør ejendommen til et endnu bedre udlejningsobjekt.
 
Flere generationer under samme tag? Og glem ikke muligheden for at bo sammen med olde, bedste, onkler og børnebørnene i denne ejendom hvor hverken plads eller muligheder er en mangelvare. Beliggenhed i Varde 
 
Placeringen i det populære Varde Syd gør ejendommen ideel. Du er tæt på indkøbsmuligheder, skoler og grønne områder, samtidig med at du nyder godt af den rolige atmosfære, som området byder på. Her får du det bedste fra to verdener – bylivets bekvemmeligheder og forstadens ro.
 
Med denne ejendom er det kun fantasien, der sætter grænser. Skal du skabe hyggelige lejeboliger, eller måske kombinere boligerne med erhverv? Mulighederne er mange, og med lidt kreativitet kan du forvandle Søndergade 38A til lige netop den type ejendom du ønsker.

Interaktiv rundvisning af boligen


Vil du vide mere om ejendommen?

Jakob Klinge

Ejendrømsmægler - Daglig leder & partner, Varde

1.848.000 kr.
Søndergade 38A, Varde, 6800 Varde


Yderligere detaljer
Pris 1.848.000 kr.
Udbetaling 95.000 kr.
Ejerudgift pr. måned 3.020 kr.
Brutto pr. md. eksl. ejerudgift 10.019 kr.
Netto pr. md. eksl. ejerudgift 8.055 kr.