NY PRIS
Ribevej 34, 6740 Bramming
Villa

GENNEMGRIBENDE RENOVERINGER FRA 2016

Er du til udsøgt kvalitet i de bedste rammer? Så er dette hjem noget for dig. Her får du en villa, der er løbende renoveret i de bedste materialer. Selv den kræsne køber vil spærre øjnene op for dette velholdte og indflytningsklare hjem.

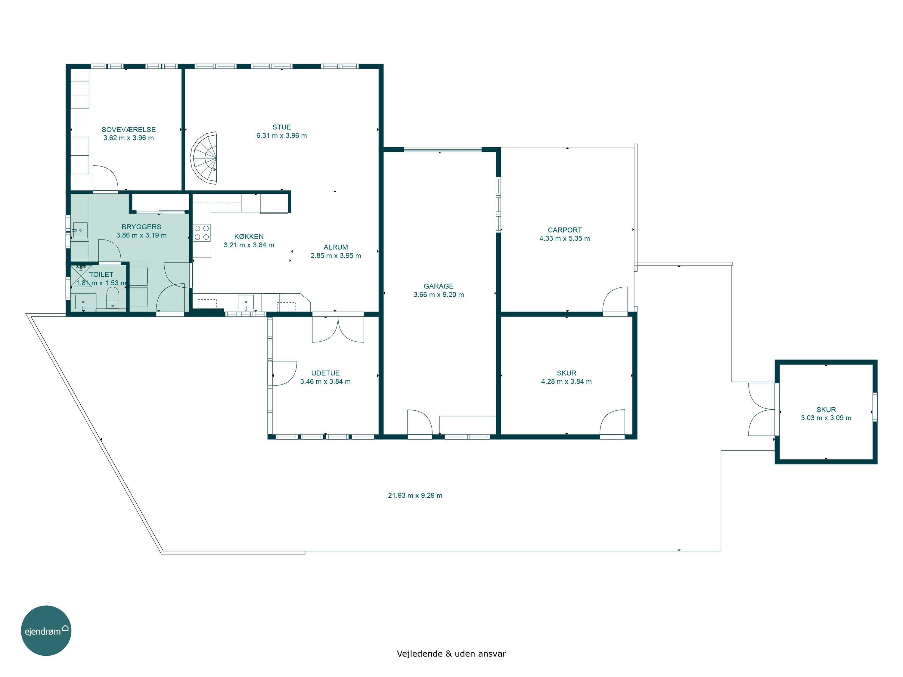
Villaen har en god beliggenhed i gåafstand til Brammings mange faciliteter. Dertil er der en fantastisk have, hvor børn i alle aldre kan nyde tilværelsen. Ydermere er der carport samt garage/værksted. Garagen har tidligere været brugt til liberalt erhverv, idet der er isoleret, samt mulighed for opvarmning fra varmepumpen.

Allerede ved første indtræden bliver man gjort opmærksom på den gennemgribende renovering, der blev foretaget i 2016. Her blev hele stueplanen renoveret med bl.a. gulvvarme overalt.

Bryggerset er ingen undtagelse. Her er de bedste betingelser, når de praktiske gøremål skal klares. Alt inventaret er i lyse og tidløse materialer. I naturlig forbindelse hertil, finder man ligeledes et lækkert badeværelse.

I forlængelse af bryggerset, er der et rummeligt soveværelse. Perfekt forældreafdeling, der gør det muligt at lave en moderne indretning med hhv. voksen- og børneafdeling.

“Hjertet” er det åbne køkken/alrum, hvor man finder et lyst og skønt køkken med masser af skabs- og bordplads. Her sikrer de mange vinduer et dejligt lysindfald, mens det er muligt at holde øje med børnenes leg i haven. Det er samtidig muligt at indtage terrassen, fra det store dørparti, der drager både natur og lys til hjemmet. Fra alrummet har man direkte udgang til en skøn udestue, som forlænger sommeren i begge ender.

I åben forbindelse med alrummet, finder man villaens opholdsstue. Stuen er møbleringsvenlig, og desuden bindeleddet til 1. salen.

1. salen har et stort repos/aktivitetsrum, som er ideelt til børnenes leg, eller et åbent kontormiljø. Dertil er der 3 gode værelser med eget badeværelse. Badeværelset har bruseniche og god gulvplads.

Et hjem hvor kvaliteten og oplevelsen er ud over det sædvanlige. ejendrøm er parat til at fremvise, når du har tid, så kontakt os allerede i dag!


Vil du vide mere om ejendommen?

Jacob Nielsen

Direktør & Indehaver

1.998.000 kr.
Ribevej 34, 6740 Bramming


Yderligere detaljer
Pris 1.998.000 kr.
Udbetaling 100.000 kr.
Ejerudgift pr. måned 1.581 kr.
Brutto pr. md. eksl. ejerudgift 10.834 kr.
Netto pr. md. eksl. ejerudgift 8.665 kr.