Ommevej 4, Omme, 6740 Bramming
Boliglandbrug

CHARMERENDE FIRELÆNGET GÅRD MED 7,2 HEKTAR OG ET UTAL AF MULIGHEDER

Ommevej 4 byder på alt det, mange drømmer om, når tanken falder på livet på landet. Her får man en smuk og klassisk firelænget ejendom, hvor længerne omslutter den hyggelige gårdsplads og skaber en helt særlig stemning af ro og privatliv. Omgivet af natur, marker og egen jord ligger ejendommen som et fredfyldt fristed – et sted, hvor man kan trække sig tilbage og nyde livet.

Til ejendommen hører hele 7,2 hektar jord, som ligger i forlængelse af bygningerne, og som derfor virkelig bliver en del af hverdagen. Her er plads til dyrehold, som sælger i dag benytter det til heste, ligesom der også er mulighed for at gå på jagt, naturoplevelser og masser af udeliv for hele familien.

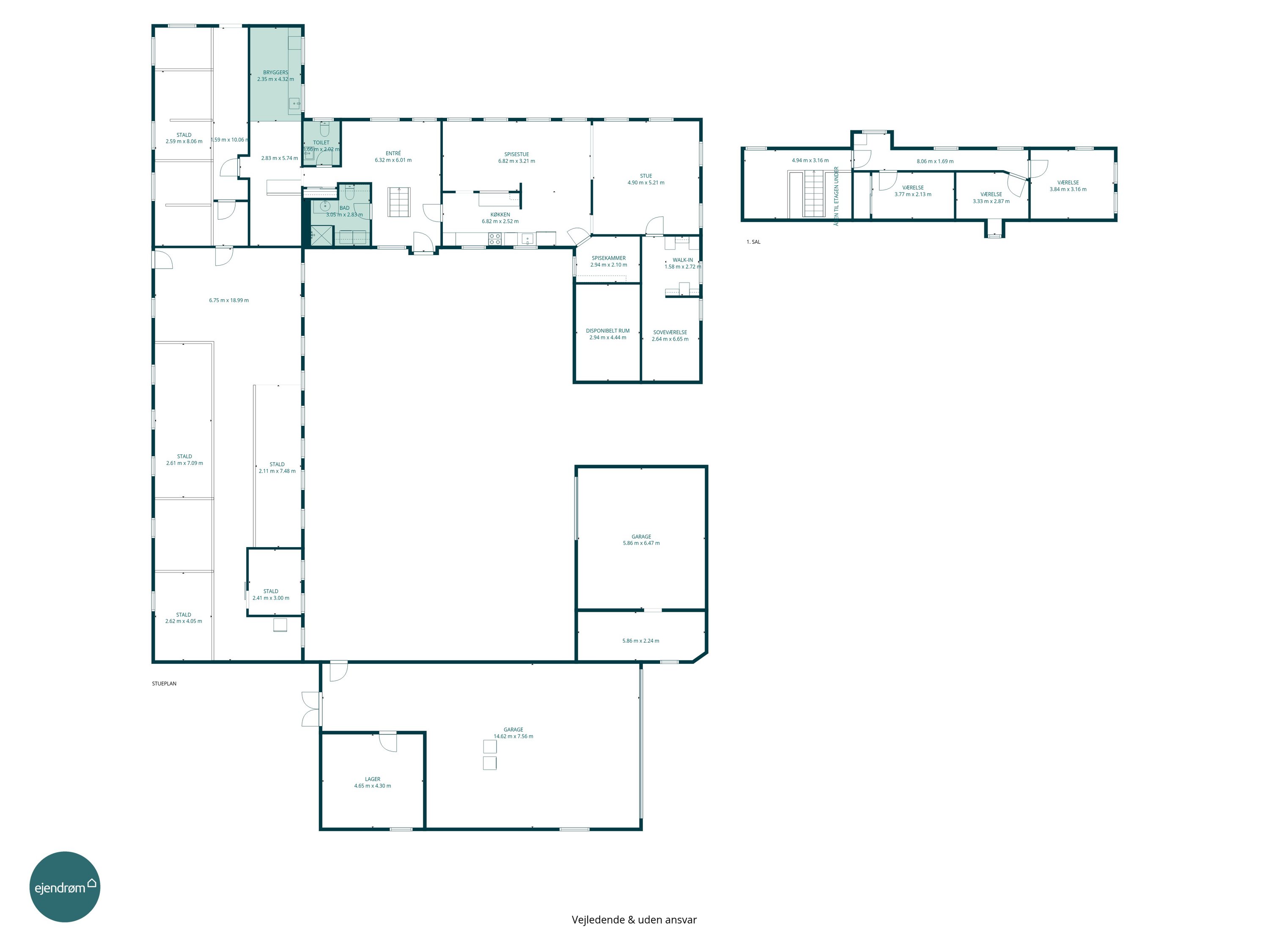
Selve boligen byder på 200 veludnyttede kvadratmeter med en moderne og funktionel planløsning. I stueplan ligger en separat voksenafdeling med soveværelse og walk-in-closet, som dog ikke er registeret som boligkvadratmeter. På 1. salen finder man ydermere tre gode værelser samt en repos, der egner sig perfekt som børnenes egen stue eller kontorplads.

Når man træder ind i villaen, mødes man af en stor og åben hall med kig op til 1. salen – husets naturlige knudepunkt, hvorfra man kan tilgå både badeværelse, gæstetoilet, staldbygning, gårdplads og havesiden. Fra hall’en føres man videre ind i køkken/alrummet, som er udstyret med et praktisk viktualierum. Videre er der adgang til stuen, som ligger afskærmet og ugeneret – et hyggeligt opholdsrum, hvor familien kan samles til ro og samvær.

For børnefamilien er beliggenheden også helt ideel. Skolebussen til Bramming stopper således lidt længere oppe ad vejen, samtidigt med at der inden længe vil blive etableret en cykelsti hele vejen ind til Bramming, så børn og voksne trygt kan færdes på cykel. I Grimstrup finder man desuden den nye friskole med undervisning fra 0.-8. klasse, børnehave, SFO og ungdomsklub. Byen er samtidig i gang med at etablere en selvbetjent købmandsbutik, som bliver et aktivt samlingspunkt for lokalområdet.

Ejendommen rummer desuden gode muligheder for erhverv på hjemmeadressen – uanset om man drømmer om at drive tømrerforretning, gårdbutik eller blot ønsker god plads til en pladskrævende hobby. De mange udhusbygninger giver et væld af anvendelsesmuligheder, og i én af længerne findes allerede hestebokse med tilhørende faciliteter. Derudover ligger der kun fem minutters kørsel fra ejendommen en ridehal i Grimstrup, hvor man kan leje sig ind.

Værd at nævne er det også at taget på stuehuset blev skiftet i 2014, og de øvrige længer fik nyt tag i2019. Flere elinstallationer i huset er fornyet fra 2014 og frem, og ejendommen opvarmes via etjordvarmeanlæg fra 2014 – hvormed flere af de store omkostningsposter allerede er afholdt.


Vil du vide mere om ejendommen?

Lasse Højlund

Ejendrømsmægler - Daglig leder og partner, Bramming

2.298.000 kr.
Ommevej 4, Omme, 6740 Bramming


Yderligere detaljer
Pris 2.298.000 kr.
Udbetaling 115.000 kr.
Ejerudgift pr. måned 2.867 kr.
Brutto pr. md. eksl. ejerudgift 12.639 kr.
Netto pr. md. eksl. ejerudgift 10.110 kr.