Solgt
Gabelsparken 137, 6740 Bramming
Villa

FLOT OG VELHOLDT VILLA PÅ HELE 228 M2

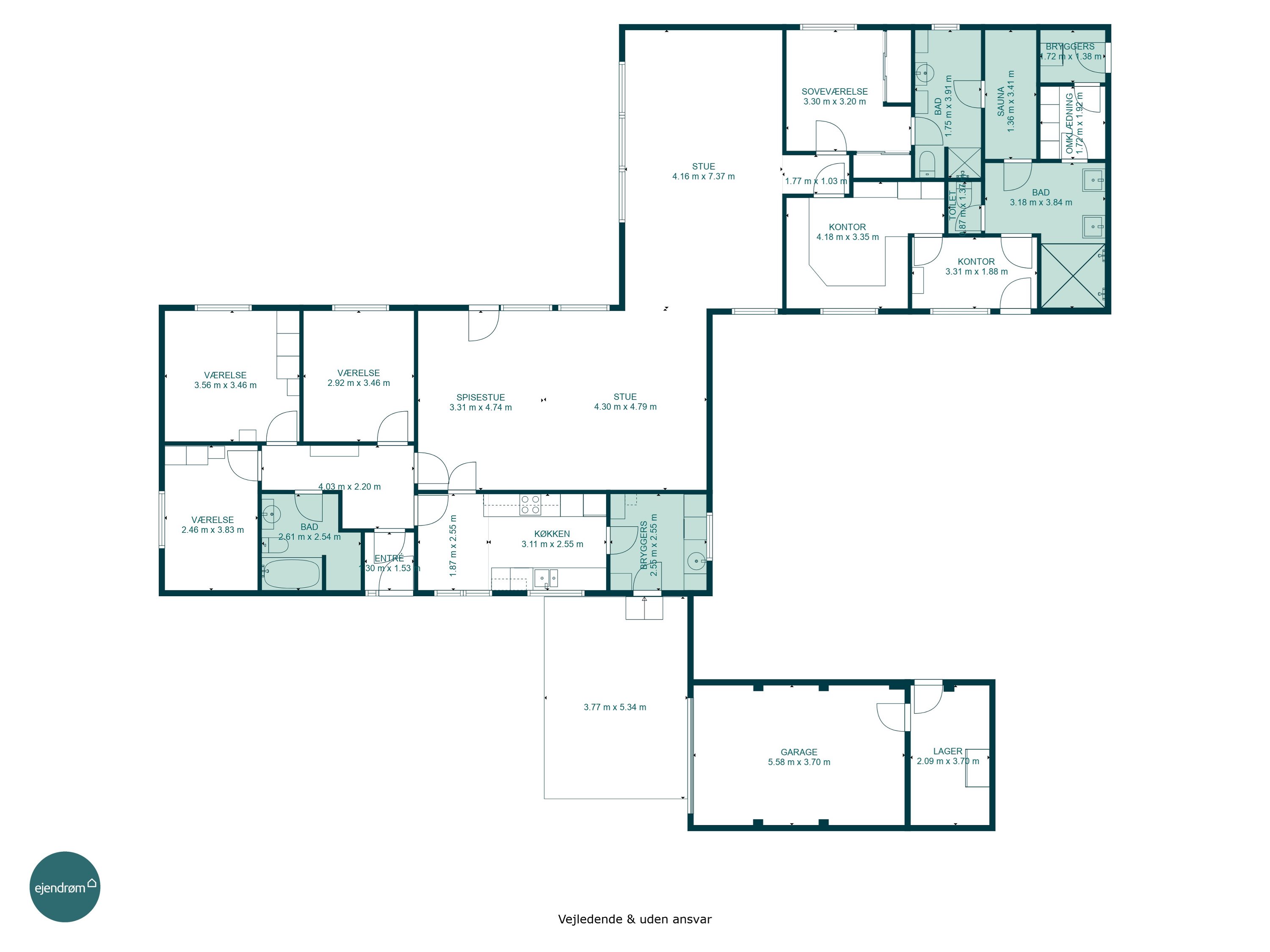
Gabelsparken er kendt for sine grønne områder, legepladser og gode stisystemer. Nu udbydes dette unikke hjem, hvor der ikke er nogle kompromiser. Villaen rummer hele 228 m2, hvoraf de 45 m2 er erhverv. Så går man med en drøm om at drive liberal erhverv eller blot udnytte alle m2 til beboelse, er der et hav af muligheder her.
 
Villaen er beliggende i en lukket lomme, hvorfra der er cykelstier til hhv. skole, indkøb og institutioner.
 
Villaen har en fin garage med tilhørende redskabsrum. Haven er et kapitel for sig. Der er flere gode terrasser hvor solen kan nydes hele dagen. Samtidig grænser villaen op til den populære Vestskov, som indbyder til skønne gåture mv.
 
Indretningen byder på: en praktisk bryggers med plads til tøjvask. Videre er et meget velholdt køkken med en hyggelig spiseplads. Børneafdelingen består af 3 gode værelser med tilhørende badeværelse med bruseniche og gulvvarme. De to stuer er villaens ”samlingspunkt” her er de store vinduespartier med til at drage naturen ind i stuerne. Går du med en drøm om køkken/alrum, kunne man undersøge at nedlægge væggen mellem køkkenet og ”spisestuen”. Og på den måde få et stort køkken/alrum og stue i forlængelse af hinanden.
 
Voksenafdelingen består af et godt soveværelse, et fint badeværelse med gulvvarme og bruseniche i forlængelse heraf er en sauna. Erhvervsdelen består af et stort kontor, omklædningsrum samt et baderum. En afdeling der er perfekt til erhverv, teeangeafdeling eller noget helt tredje da man har egen indgang.
 
Så søger du en meget velholdt familievenlig villa med gode muligheder og samtidig beliggende i et af Brammings populære kvarter? Så er Gabelsparken 137 bestemt et besøg værd.


Leder du efter en ejendom som denne?

Jacob Nielsen

Direktør & Indehaver

Ejendommen er solgt
Gabelsparken 137, 6740 Bramming


Yderligere detaljer
Pris 2.798.000 kr.
Udbetaling 140.000 kr.
Ejerudgift pr. måned 2.921 kr.
Brutto pr. md. eksl. ejerudgift 15.500 kr.
Netto pr. md. eksl. ejerudgift 12.366 kr.