NY PRIS
Ejlif Krogagers Vej 48, 6731 Tjæreborg
Villa

ARKITEKTTEGNET FAMILIEVILLA MED MASSER AF PLADS

Velkommen til Ejlif Krogagersvej 48 – en indbydende og moderne villa i børnevenlige Tjæreborg, opført i 2013 og tegnet af den anerkendte arkitektfirma Egebæk huse. Her er der kræset for både design, funktionalitet og komfort.

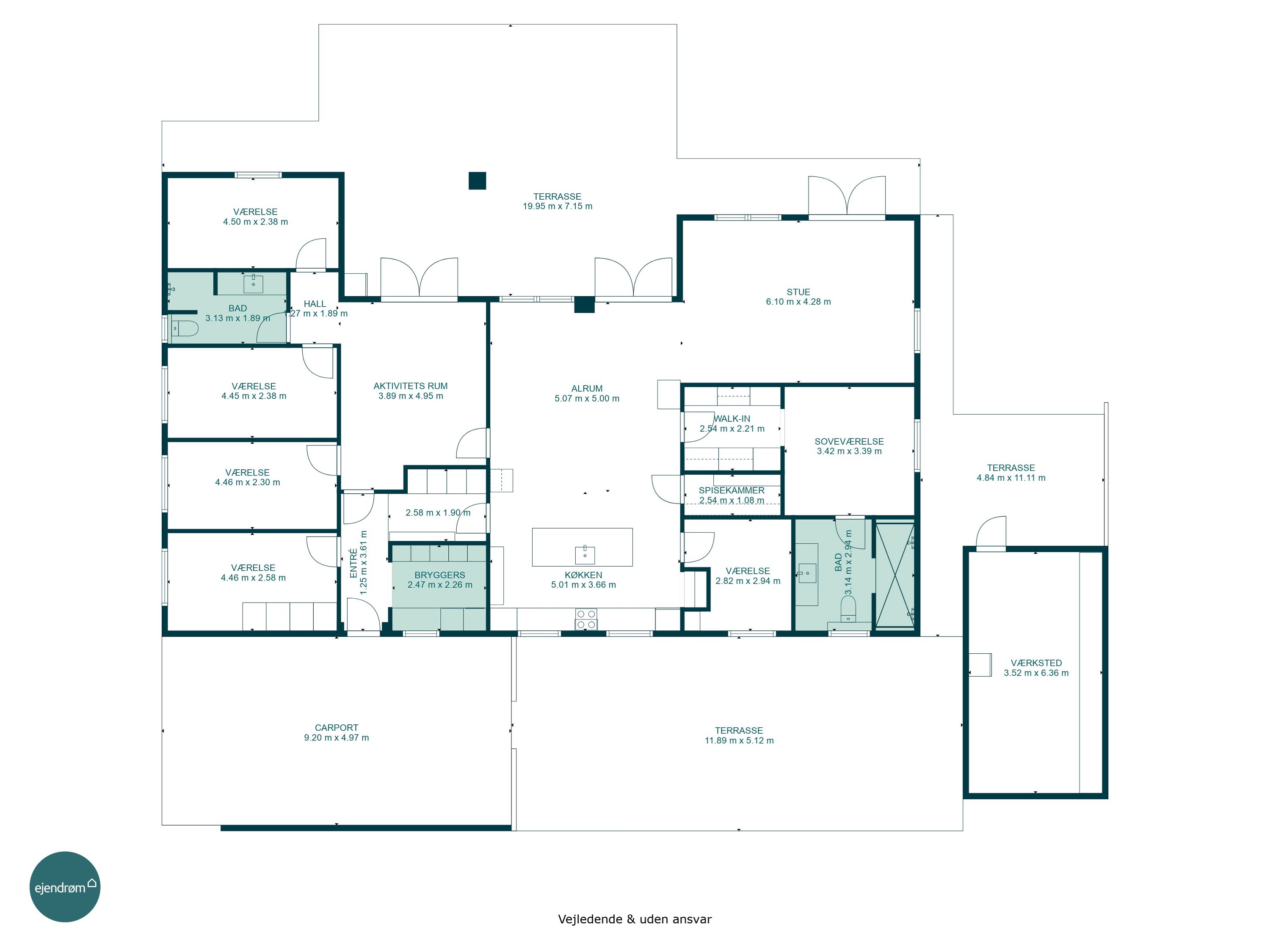
Med sine 226 velindrettede kvadratmeter får du masser af plads at boltre dig på – og med hele 5 værelser er her rig mulighed for både børne- og forældreafdeling, hjemmekontor, gæsteværelse eller hobbyrum. Planløsningen giver gode muligheder for at kunne ligge en væg ned på et af værelserne for at give flere kvadratmeter til de eksisterende værelser, eller tilføje plads til bryggerset såfremt det ønskes. Hertil kommer en carport på 34 kvm med god plads til både bil og opbevaring.

Det hele ligger på en solrig grund på 868 kvm, der giver plads til både leg og afslapning i rolige omgivelser.

Boligens hjerte er det store, åbne køkken-alrum med direkte forlængelse til stuen, hvor du får højt til loftet, et skønt lysindfald og Troldtekt-lofter, som sikrer en behagelig akustik – selv når hele familien er samlet.

Den rummelige planløsning byder desuden på to moderne badeværelser, hvilket gør hverdagen ekstra bekvem – især for den travle familie, hvor både morgen- og aftentimer skal glide let.

Et Genvex-anlæg sørger for et sundt og energieffektivt indeklima hele året rundt, og understreger den høje komfort og kvalitet, der præger hele boligen.

Muligheder: Ønsker du større værelser er der rig mulighed for at ligge en væg ned og skabe mere plads. Ønsker du ekstra entré plads er der mulighed for at inddrage værelset nærmest enréen. Overordnet set er det her hus 100% indflytningsklart. Men muligheder for at optimere planløsningen til lige netop dine behov er absolut til stede!

Kort sagt: En arkitekttegnet kvalitetsvilla med masser af plads, gennemtænkte detaljer og moderne løsninger – perfekt til den moderne familie, der drømmer om et hjem med både stil og funktionalitet.


Vil du vide mere om ejendommen?

Lasse Sølvberg Abildgaard

Ejendrømsmægler & partner

3.998.000 kr.
Ejlif Krogagers Vej 48, 6731 Tjæreborg


Yderligere detaljer
Pris 3.998.000 kr.
Udbetaling 200.000 kr.
Ejerudgift pr. måned 2.498 kr.
Brutto pr. md. eksl. ejerudgift 21.576 kr.
Netto pr. md. eksl. ejerudgift 17.259 kr.