Darumvej 54A+B, 6740 Bramming
Villa

INVESTERING EJENDOM FRA 2020

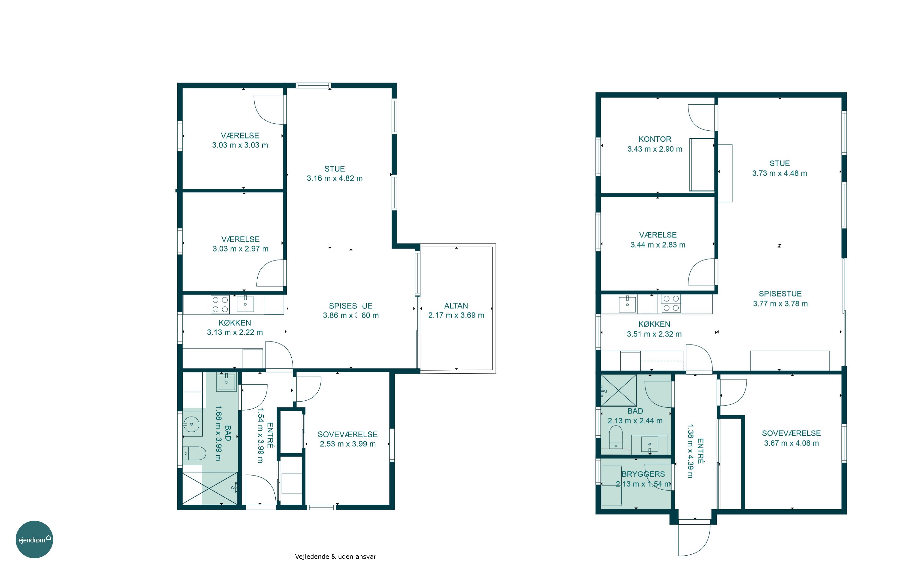
Tæt på byens faciliteter og samtidig beliggende tæt på natur, finder man denne investeringsejendom fyldt med muligheder. Ejendommen er fordelt på 2 selvstændige lejemål på hhv. 110 kvm. (stueplan) og 99 kvm. (1. sal). Stueplanen er pt. udlejet for 8.736 kr. inkl. forbrug i mdr., hvor 1. salen er udlejet for 7.725 kr. inkl. forbrug i mdr. 
 
Ejendommen er bygget i 2020. Og derfor er der minimal vedligeholdelse på den og samtidig er varmeudgiften også minimal. Stueplanen er indrettet med: bryggers, badeværelse, to værelser, et soveværelse samt åbent køkken/alrum og stue i et. Her får du et fedt lys ind af det store vinduesparti. Fra stuen er der udgang til en hyggelig terrasse. 1. salen byder på 2 gode værelser, soveværelse, et lyst og lækkert badeværelse samt et fedt køkken/alrum og stue i et. Her får du og et fedt lys ind af det store vinduesparti. Herfra er der udgang til en fin altan.
 
ejendrøm er klar til at fremvise, så kontakt os allerede i dag for en fremvisning!


Vil du vide mere om ejendommen?

Jacob Nielsen

Ejendrømsmægler - Indehaver

2.800.000 kr.
Darumvej 54A+B, 6740 Bramming


Yderligere detaljer
Pris 2.800.000 kr.
Udbetaling 140.000 kr.
Ejerudgift pr. måned 2.469 kr.
Brutto pr. md. eksl. ejerudgift 14.884 kr.
Netto pr. md. eksl. ejerudgift 12.019 kr.