Valmuemarken 18, 6771 Gredstedbro
Villa

PRISVENLIG OG INDFLYTNINGSKLAR VILLA I GREDSTEDBRO

Endelig har ejendrøm fornøjelsen af at udbyde denne prisvenlige og indbydende villa, beliggende i et roligt og familievenligt kvarter i Gredstedbro. Her får du en bolig, hvor der er tænkt over både komfort, funktionalitet og æstetik – og med kort afstand til alt det, der får hverdagen til at hænge sammen: skole, indkøb, institutioner og gode fritidsmuligheder.

Villaen gennemgik i 2012 en omfattende modernisering, hvor der blandt andet blev etableret et nyt og stilrent køkken samt badeværelse. Sælger har desuden fået lavet ny kloak og el, hvilket betyder, at flere af de store poster allerede er klaret for dig.

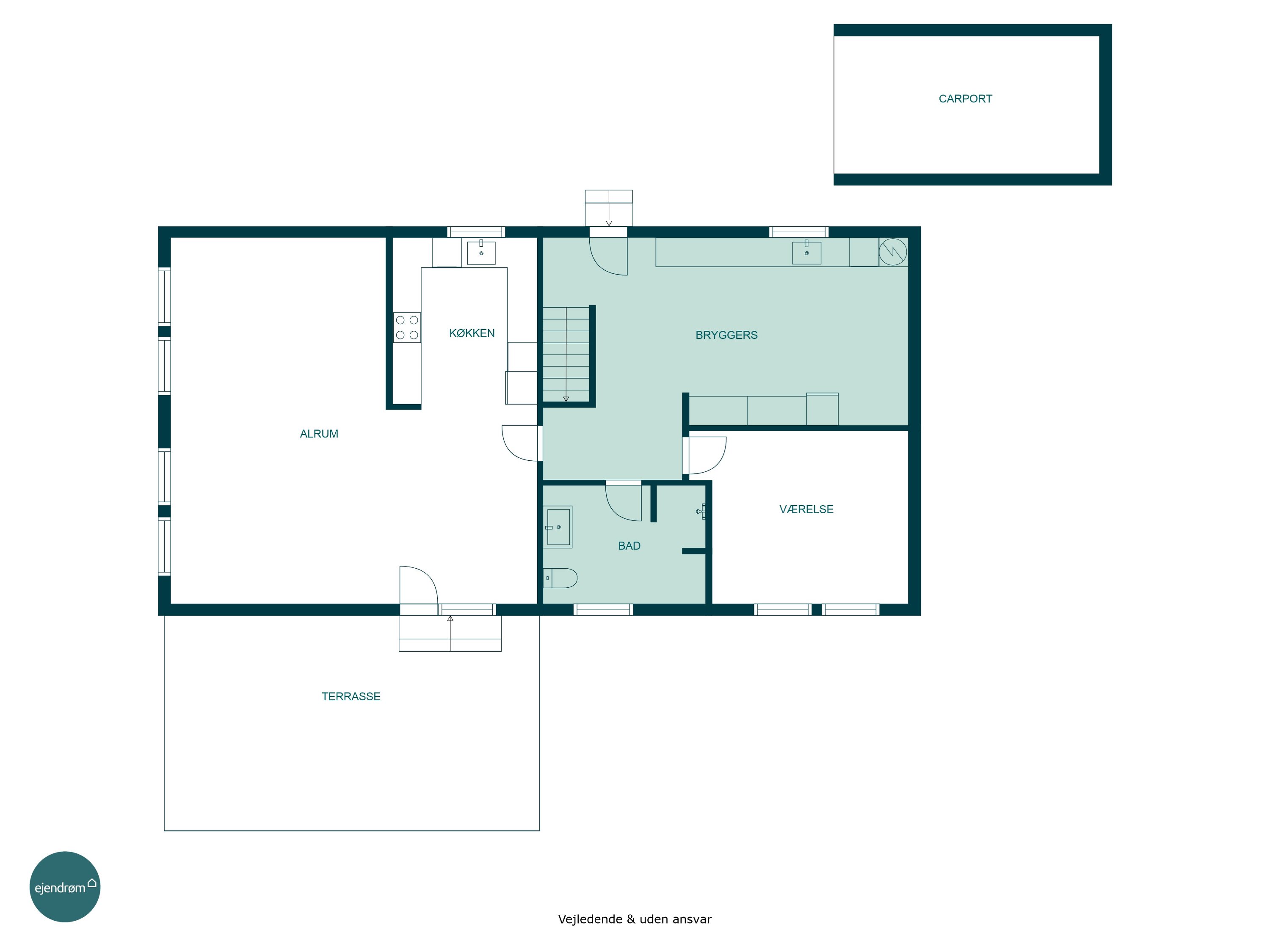
Boligen er indrettet med fokus på familielivet og hverdagen. Fra entréen føres du direkte ind i det store bryggers, hvor der er masser af opbevaringsplads og god plads til hverdagens praktiske gøremål. Herfra er der også adgang til husets badeværelse, et værelse samt trappeopgangen til 1. salen. Hjerterummet i boligen er det åbne køkken/alrum, hvor de lyse elementer og den åbne planløsning inviterer til samvær. I åben forbindelse til køkkenet finder du stuen, som er både lys, rummelig og let at indrette med både spiseafdeling og sofaområde.

Villaen rummer i alt tre gode værelser – ét i stueplan og to på førstesalen, hvor der tillige findes et tilstødende toilet. Den oplagte fordeling gør det muligt at indrette en separat forældreafdeling eller give teenageren sit eget område.

Udendørs venter en dejlig og ugeneret have med masser af plads til både afslapning, leg og boldspil. Den store terrasse inviterer til lange sommeraftener, mens den omkransende hæk sikrer både privatliv og ro.
Så leder du efter en indflytningsklar villa med god plads, moderne komfort og en beliggenhed, hvor lokalsamfundet stadig betyder noget – så skal du opleve Valmuemarken 18.

Ring til Ejendrøm for en fremvisning – vi glæder os til at byde dig velkommen!


Vil du vide mere om ejendommen?

Lasse Højlund

Ejendrømsmægler - Daglig leder og partner, Bramming

1.198.000 kr.
Valmuemarken 18, 6771 Gredstedbro


Yderligere detaljer
Pris 1.198.000 kr.
Udbetaling 60.000 kr.
Ejerudgift pr. måned 1.107 kr.
Brutto pr. md. eksl. ejerudgift 6.542 kr.
Netto pr. md. eksl. ejerudgift 5.230 kr.