Solgt
Ribevej 43, 6740 Bramming
Villa

SMUK PATRICIERVILLA I BRAMMING MED UNIKKE DETALJER

Her får man en imponerende patriciervilla opført i 1910, der strækker sig over 226 m² og er beliggende på en 1.230 m² stor grund. Denne storslåede villa har et imponerende udtryk og emmer af historisk charme og elegance. Beliggende centralt i Bramming giver denne villa nem adgang til byens faciliteter, herunder indkøb, skoler og offentlig transport, samtidig med at man kan nyde privatlivets fred i de rolige omgivelser.

Villaen er kendetegnet ved sin klassiske arkitektur, der afspejler tidens håndværksmæssige kvalitet og sans for detaljer. Den rummelige villa byder på højt til loftet, trægulve og smukke stuklofter, som tilsammen skaber en herskabelig atmosfære.

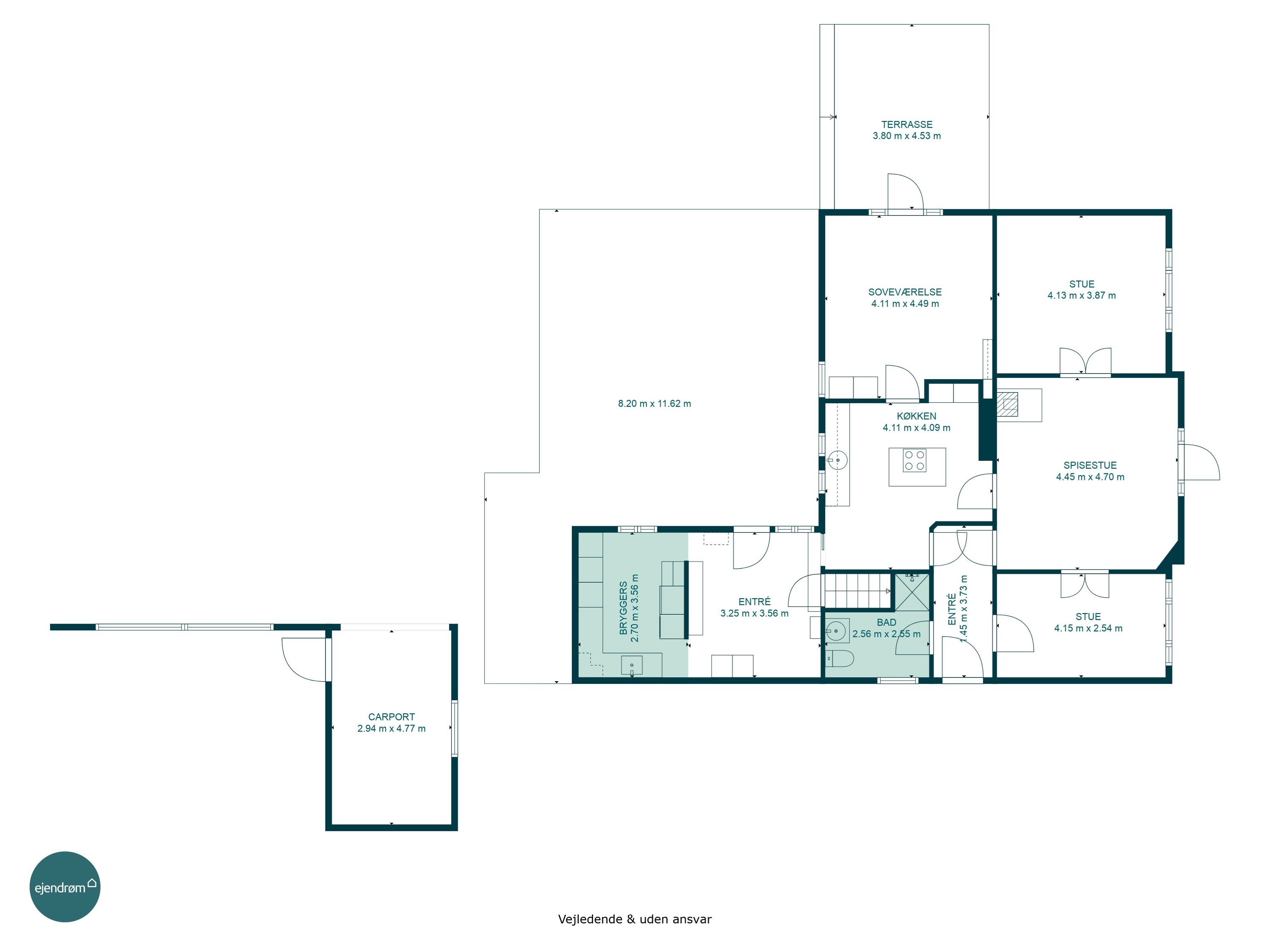
Villaens indretning byder på et stort bryggers. Her er der god plads til familiens overtøj, samt de praktiske gøremål, såsom tøjvask. Fra bryggerset indtager man køkken/alrummet. Køkkenet er lyst og tidløst, og emmer af kvalitet. Et skønt samlingssted for hele familien. I naturlig sammenhæng til køkkenet, er der 3 store stuer, som alle er med originale stuklofte, brændeovn og smukke vinduespartier, som kaster lys til de dejlige stuer.

I stueplanen er der et stort soveværelse, som er ideelt for den pladskrævende familie. Herfra har man desuden direkte udgang til den skønne have og terrasse. Ydermere er der et lækkert badeværelse m. bruseniche.

1. salen er ligeledes et kapitel for sig. Her er der loft til kip og 4 gode værelser. Med andre ord er der plads til den store børnefamilie, der drømmer om en god fordeling i familielivet. Hertil er der endnu et skønt badeværelse med både badekar og bruseniche. Ligesom resten af hjemmet, uden kompromiser.

Den velanlagte have omkranser ejendommen og tilbyder et privat fristed med gamle træer, blomstrende buske og hyggelige kroge, hvor man kan nyde roen og skønheden i de naturskønne omgivelser.

Dette hjem er en sjælden perle, der kombinerer historisk elegance med moderne bekvemmeligheder, og tilbyder en unik mulighed for at eje et stykke af Brammings arkitektoniske arv.

Interaktiv rundvisning af boligen


Leder du efter en ejendom som denne?

Jacob Nielsen

Direktør & Indehaver

Ejendommen er solgt
Ribevej 43, 6740 Bramming


Yderligere detaljer
Pris 2.498.000 kr.
Udbetaling 125.000 kr.
Ejerudgift pr. måned 2.104 kr.
Brutto pr. md. eksl. ejerudgift 13.517 kr.
Netto pr. md. eksl. ejerudgift 10.811 kr.